
Căn nhà trên mảnh đất 7 x 21 m ở Đức Trọng, Lâm Đồng dành cho gia đình đôi vợ chồng và một đứa con ba tuổi. Gia chủ sinh năm 9x nên mong muốn căn nhà thể hiện cá tính trẻ trung với mức đầu tư vừa phải.

Từng có thời gian sống ở Đà Lạt thuở nhỏ, gia chủ còn mong căn nhà giữ được cái hồn của những công trình xưa cũ và mang nét văn hóa địa phương. Phương án của kiến trúc sư là thiết kế nhà hai tầng lấy cảm hứng từ nhà rông Tây Nguyên và trường Cao đẳng Sư phạm Đà Lạt do người Pháp xây dựng. 
Nhìn từ phía ngoài, ngôi nhà đã thể hiện được những nét đặc trưng của hai công trình này qua mái nhọn và tường gạch. 
Nhờ hình khối vuông vắn và hiện đại hơn nguyên mẫu, công trình phù hợp với độ tuổi của gia chủ cũng như xu thế kiến trúc ngày nay. Màu trắng và màu gạch đỏ của mặt tiền giúp công trình nổi bật mà vẫn hòa hợp với bối cảnh xung quanh. 
Ngoài mong muốn căn nhà gợi nhớ nét xưa cũ, gia chủ còn muốn tổ ấm thông thoáng nên kiến trúc sư bố trí nhiều khe hở, giúp không khí lưu thông.

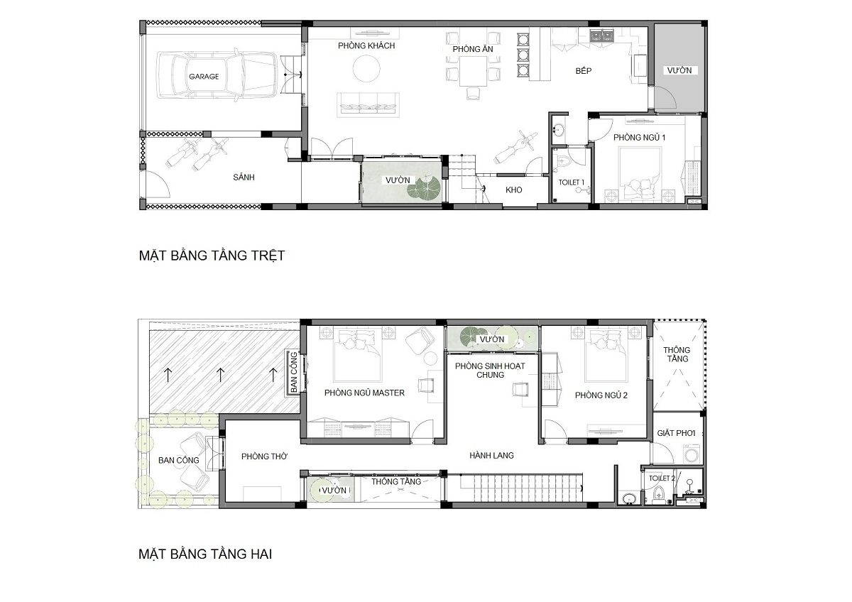
Để tiết kiệm chi phí cho gia chủ, nội thất được thiết kế vừa đủ đáp ứng nhu cầu sử dụng. 
Nhà có bốn mảnh vườn nhỏ, vừa tăng mảng xanh cho công trình, vừa kết hợp thông tầng đưa ánh sáng đến mọi góc nhà. 
Cũng nhờ các mảnh vườn nhỏ và thông tầng mà không gian trong nhà được kết nối với nhau.

Người ở cũng dễ dàng nhìn thấy nhau và tương tác qua lại.

Khí hậu ở Đức Trọng ôn hòa, nhiệt độ trung bình 18-22 độ nhưng có nhiều ánh sáng. Để tận dụng ánh nắng tự nhiên, kiến trúc sư bố trí các ô cửa lớn ở cả không gian sinh hoạt chung lẫn phòng ngủ riêng tư. Nhờ đó, nhà sáng, ấm và tiết kiệm năng lượng. 
Theo Minh Trang (VnExpress)
Ảnh: Paul Phan
Thiết kế: Kaa Architects
CÔNG TY CỔ PHẦN KIẾN TRÚC VÀ NỘI THẤT ĐÔNG A
Địa chỉ: Phòng 1601 – Chung cư CT2 – 583 Nguyễn Trãi – Thanh Xuân – Hà Nội
Hotline: 090 116 3688
Email: nhadepdonga.jsc@gmail.com
Kiến trúc và nội thất Đông A là công ty chuyên thiết kế và thi công hoàn thiện các công trình ngoại, nội thất từ phong cách cổ điển, tân cổ điển đến hiện đại. Những công trình đẳng cấp của Đông A mang phong cách phù hợp với không gian, vật liệu và đặc điểm khí hậu Việt Nam.
Tại sao nên lựa chọn tư vấn thiết kế tại Kiến trúc Đông A ?
Chúng tôi có những kiến trúc sư, kỹ sư xây dựng đam mê và giàu kinh nghiệm, luôn nỗ lực hết mình để đem đến cho quý khách hàng những công trình chất lượng cao nhất, thể hiện giá trị và tầm nhìn thời đại.
Với những tiêu chuẩn khắt khe cả về thiết kế và thi công. Kiến trúc và nội thất Đông A không hướng tới thiết kế số lượng mà tập trung cho từng thiết kế.
Các công trình của Công ty cổ phần kiến trúc và nội thất Đông A phủ sóng rộng khắp trên toàn quốc. Khắp ba miền của cả nước từ Bắc vào Nam đều có sự có mặt của các công trình của Đông A.
Ở Đông A JSC chúng tôi luôn đặt chất lượng lên hàng đầu, chất lượng dịch vụ, chất lượng sản phẩm. Mọi chi tiết đều được tính toán cân nhắc sao cho phù hợp nhất với điều kiện không gian, loại hình công trình, khả năng tài chính của từng chủ đầu tư.
Nếu bạn thật sự yêu thích và mong muốn sở hữu những một ngôi nhà như thế hãy để chúng tôi giúp bạn hiện thực những mong muốn đó.
Danh mục: Tạp trí nhà đẹp