Thông tin chung công trình:
– Chủ đầu tư: Anh Nam
– Địa chỉ: Hồng Vân, Thường Tín, Hà Nội
– Diện tích: 150m2/sàn
– Năm thiết kế: 2023
– Đơn vị thiết kế: Công ty cổ phần kiến trúc và nội thất Đông A
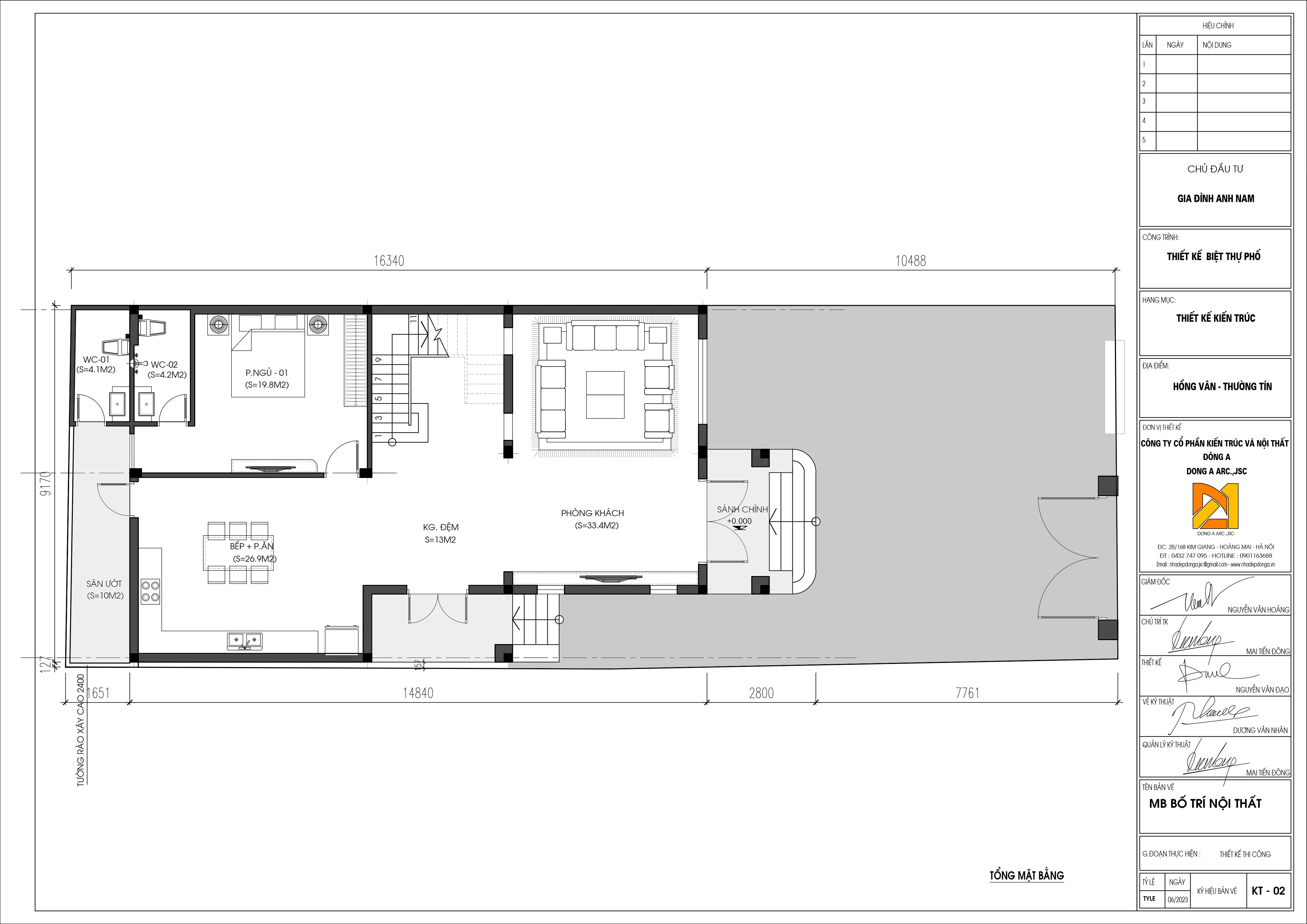
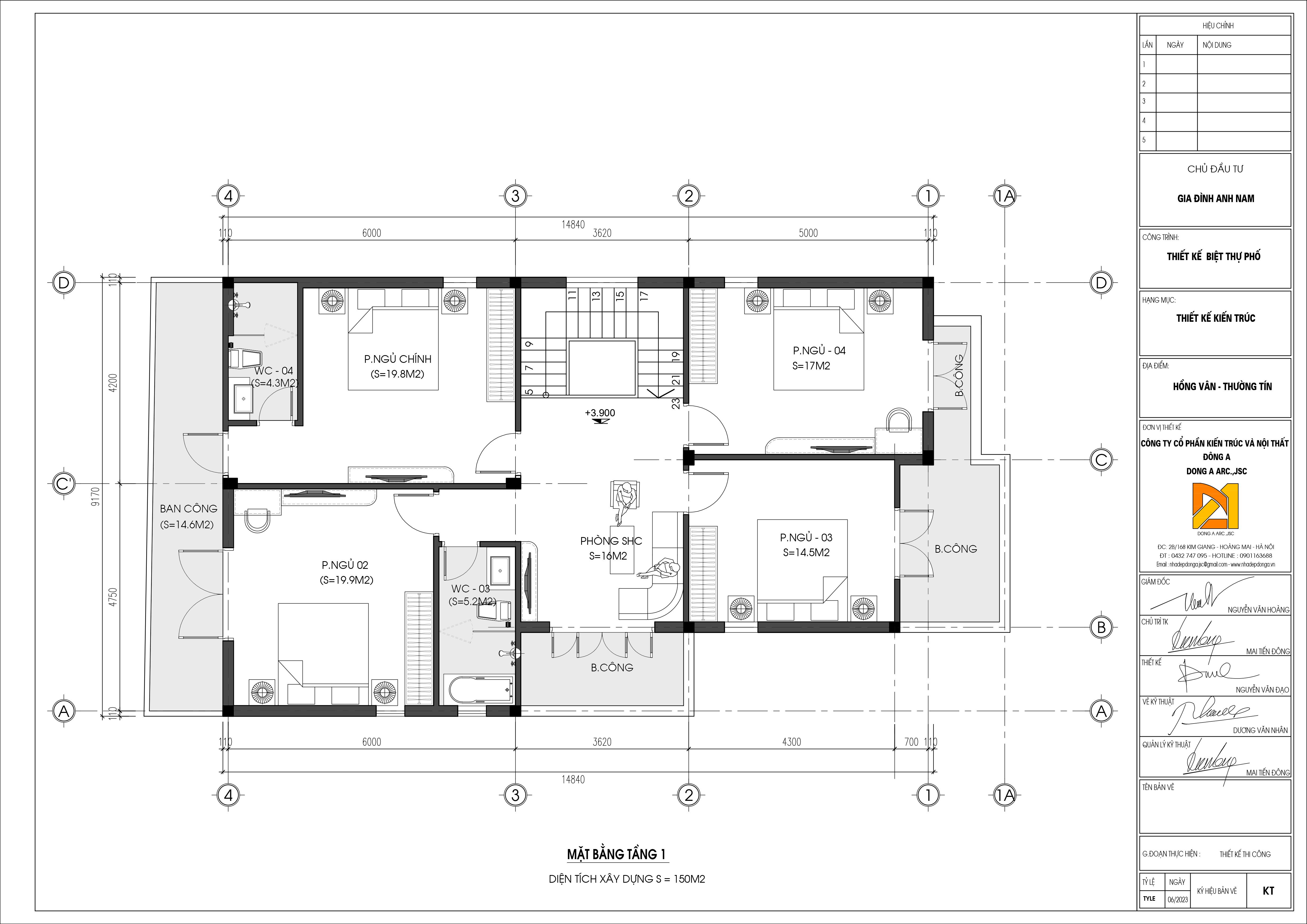
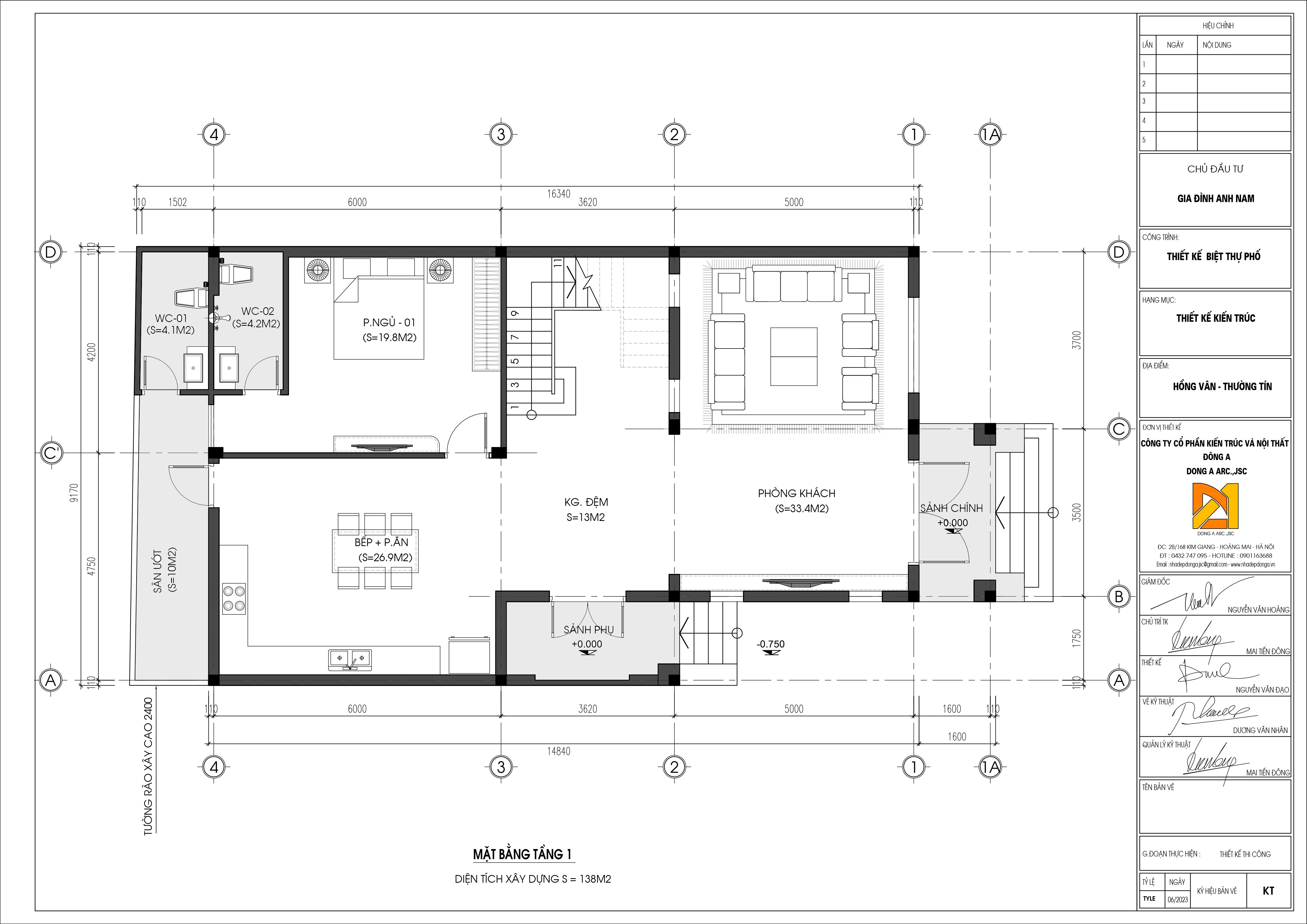
Bố trí mặt bằng công năng
– Tầng 1: 1 Phòng khách, 1 Phòng bếp + ăn,1 Phòng ngủ, 2 Vệ sinh
– Tầng 2: Phòng ngủ master, 3 Phòng ngủ, Phòng sinh hoạt chung + 2 Vệ sinh
Phối cảnh 3d mẫu biệt thự 2 tầng tân cổ điển đẹp BTTCD-4837
Biệt thự phố 2 tầng tân cổ điển của gia đình anh Nam là một kiểu kiến trúc đẹp và ấn tượng, kết hợp giữa sự sang trọng và sự cổ điển trong thiết kế. Cùng Đông A ngắm nhìn về một biệt thự phố 2 tầng tân cổ điển đẹp này nhé.

Biệt thự kiến trúc tân cổ điển với các đường nét tinh tế, mái thái chữ A cao, thiết kế giật cấp ấn tượng giúp nâng tầm vóc dáng biệt thự thêm cao lớn và vững trãi. Cùng với các cột trụ cổ điển, phào chỉ uốn tròn mềm mại bao quanh sảnh lối vào, ban công tạo điểm nhấn về vẻ đẹp cổ điển.

Về màu sắc: Màu sắc chủ đạo trong thiết kế này, kts Đông A sử dụng là những gam màu trung tính như trắng, ghi nhạt tạo nên vẻ thanh lịch và tinh tế.
Cửa ra vào được thiết kế rộng bằng gỗ tự nhiên với các chi tiết hoa văn được đục đẽo tinh xảo, tạo nên sự hoàn thiện cho diện mạo tổng thể.
Toàn bộ hệ thống cửa sổ, cửa ban công, ô thoáng bên trong ngôi nhà được đồng bộ sử dụng hệ cửa nhôm xingfa kính cường lực vừa chắc chắn vừa hiện đại. Không chỉ giúp che chắn, đảm bảo sự an toàn cho ngôi nhà mà còn giúp tận dụng nguồn năng lượng tự nhiên ánh sáng, gió mát hiệu quả.

Toàn bộ hệ thống lan can ban công của biệt thự sử dụng thép mỹ thuật sơn đen sang trọng với những đường cong uốn lượn mềm mại toát lên khí chất thanh cao rất hoài cổ. Bao quanh biệt thự là hệ thống tường rào kiên cố, đan xen những bức tường xi măng là hoa sắt nghệ thuật. Không chỉ giúp tạo điểm nhấn cho công trình mà còn giúp tạo sự thông thoáng kéo gần hơn khoảng cách giữa không gian bên trong và ngoài biệt thự.

Bức phù điêu đắp nổi tinh tế là minh chứng cho gu thẩm mỹ, yêu nghệ thuật, yêu cái đẹp của chủ nhân ngôi biệt thự. Khiến bất cứ ai đi qua đều không khỏi suýt xoa, cảm thán nét đẹp sang trọng mà vẫn rất hiện đại, rất riêng vô cùng nổi bật của ngôi biệt thự này.

Bên cạnh kiến trúc đẹp, biệt thự phố 2 tầng tân cổ điển của gia đình anh Nam còn được đánh giá cao ở cách bố trí công năng khoa học, diện tích các không gian chức năng được tính toán chính xác đảm bảo vừa tiện nghi trong sinh hoạt vừa tối ưu diện tích vốn có.


Nếu bạn đang có ý định xây dựng cho mình một một ngôi biệt thự phố 2 tầng hiện đại đẹp, đẳng cấp hãy liên hệ với Công ty cổ phần Kiến trúc và Nội thất Đông A để được tư vấn, thiết kế, sở hữu những công trình hoàn mỹ nhất.
Hãy liên hệ với chúng tôi để được tư vấn miễn phí!
CÔNG TY CỔ PHẦN KIẾN TRÚC VÀ NỘI THẤT ĐÔNG A
Hotline: 090 116 3688
Email: nhadepdonga.jsc@gmail.com
Danh mục: Biệt thự 2 tầng, Thiết kế Biệt Thự, Thiết Kế Kiến Trúc, Thiết kế Nhà Phố, Thiết kế nhà phố tân cổ điển, Thiết kế nhà phố đẹp