Mẫu biệt thự hiện đại mái Nhật 3 tầng là thiết kế của Kiến trúc Đông A dành riêng cho gia đình anh Hùng ở Thanh Oai, Hà Nội. Ngôi biệt thự 3 tầng hiện đại với tổng thể kiến trúc hài hòa từ bố cục hình khối, vật liệu, màu sắc,… Là gợi ý hoàn hảo cho những ai yêu thích không gian mới mẻ, độc đáo.
Thông tin chung công trình:
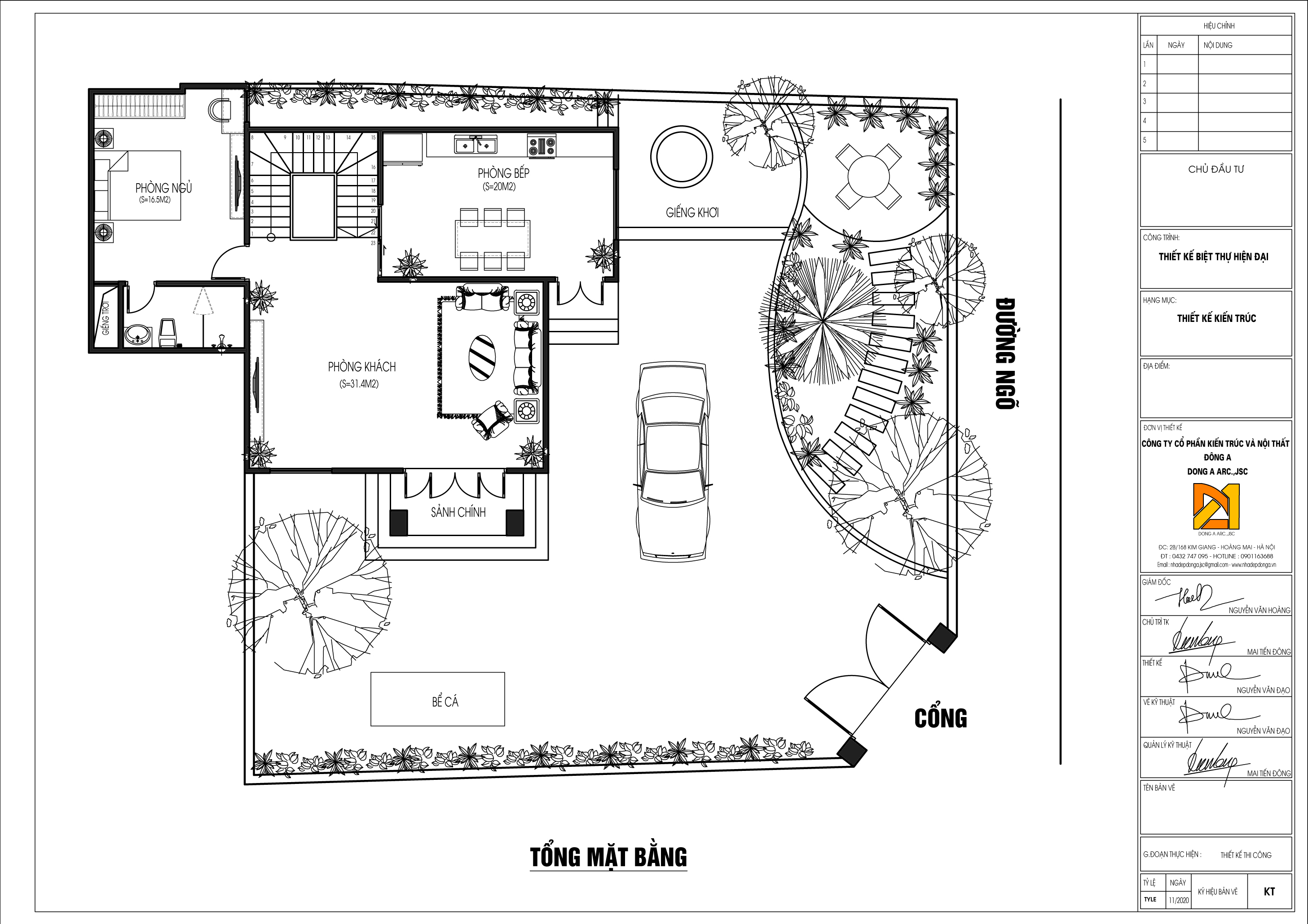
– Chủ đầu tư: Anh Hùng
– Địa chỉ: Thanh Oai – Hà Nội
– Mặt tiền: 7,5m
– Diện tích sàn tầng 1: 93m2
– Năm thiết kế: 2020
– Đơn vị thiết kế: Công ty cổ phần kiến trúc và nội thất Đông A
Bố trí mặt bằng công năng
– Tầng 1: Phòng khách + Phòng bếp ăn + Phòng ngủ khép kín
– Tầng 2: 3 Phòng khách + Phòng sinh hoạt chung + 2 Vệ sinh
– Tầng 3: Phòng thờ + 1 Phòng ngủ + Vệ sinh + Sân chơi + Sân phơi
Phối cảnh 3d thiết kế biệt thự hiện đại mái nhật 3 tầng ấn tượng BTHD – 4770
Ngôi biệt thự hiện đại thu hút ánh nhìn bởi thiết kế kiến trúc hoàn hảo. Sự tỉ mỉ trong việc lựa chọn vật liệu như kính, gỗ, gạch ốp,… với tiêu chuẩn cao không chỉ mang lại chất lượng tốt nhất cho công trình mà còn cả vẻ đẹp thẩm mỹ.

Xét về tổng thể, các khối hình bê tông được bố trí khoa học kết hợp cùng cây xanh, sân vườn hài hòa mang đến không gian sống xanh, gần gũi với thiên nhiên khiến gia chủ vô cùng tự hào.

Hệ cửa, những bức tường kính được phân bố khắp các mặt của ngôi biệt thự, không chỉ giúp lấy ánh sáng tự nhiên, giúp lưu thông không khí trong nhà đồng thời cho view nhìn rộng từ bên trong ngôi biệt thự 3 tầng hiện đại này.

Hệ thống tường rào nhấn ấn tượng kết hợp những mảng tường xi măng ốp đá tự nhiên đan xen những hàng lam chắn xi măng màu ghi. Được sắp xếp xen kẽ linh hoạt tạo ra những khoảng hở vừa thông thoáng vừa đảm bảo sự riêng tư, kín đáo.

Đánh giá được tầm quan trọng của không gian sinh hoạt, các kiến trúc sư Đông A nhanh chóng triển khai đưa ra phương án bố trí mặt bằng công năng phù hợp với nhu cầu, diện tích của gia chủ. Sơ đồ bố trí không gian phòng theo phong cách hiện đại nhưng ấm cúng, tiện lợi tạo sợi dây gắn kết vô hình giữa mọi người trong nhà.

Có thể nói đây là một mẫu thiết kế kiến trúc hiện đại đẹp đáp ứng được cả 3 tiêu chí về thẩm mỹ, công năng sử dụng, sự hài hòa về phong thủy. Chính vì thế, ngay khi bàn giao thiết kế, chủ đầu tư đã đánh giá rất cao và hoàn toàn hài lòng với thiết kế của Kiến trúc Đông A.
Hãy liên hệ với chúng tôi để được tư vấn miễn phí!
CÔNG TY CỔ PHẦN KIẾN TRÚC VÀ NỘI THẤT ĐÔNG A
Hotline: 090 116 3688
Email: nhadepdonga.jsc@gmail.com
Danh mục: Biệt thự 3 tầng, Thiết kế Biệt Thự, Thiết Kế Kiến Trúc